Botero Residence

Home > Projects > Botero Residence

Service :

Full Interior Design

Location:

New York, NY

Category:

Residential

Project Story

Nestled in the heart of architectural brilliance, the Botero Residence pays homage to the iconic Colombian artist Fernando Botero, drawing inspiration from his signature “Boterismo” style known for its celebration of exaggerated volume and form. Once a firehouse, the space has been reimagined through a design concept that transforms rigid structure into fluid, sculptural elegance—embracing curves, bold silhouettes, and a sense of expansive intimacy. From the foyer and gallery workspace to the great room and grand terrace, each area is thoughtfully crafted to reflect Botero’s artistic essence, blending rich textures with purposeful design. More than just a home, the Botero Residence stands as a living canvas where art and architecture unite in a timeless expression of creativity and form.

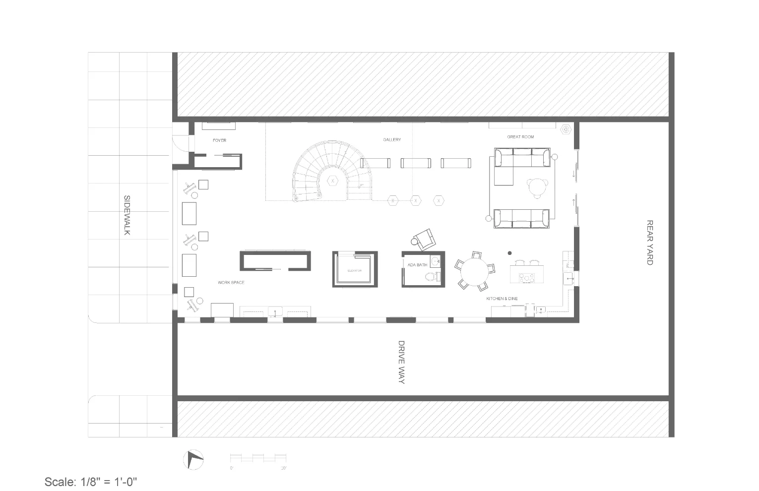
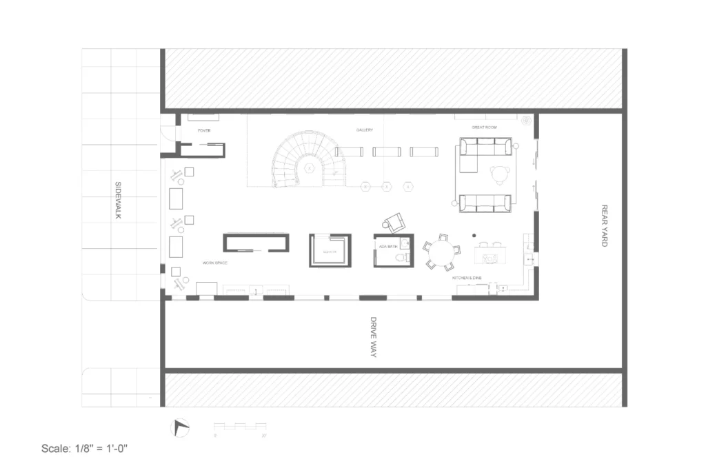
1st Floor black and white plan

botera first floor plan

2nd Floor black and white plan

botera first floor plan

1st Floor Rendered plan

botera residence rendered first floor plan

2nd Floor Rendered plan

botera residence rendered second floor plan

Perspectives

botero-residence-interior-design-middlesex
botero-residence-new-jersey-hunterdon
botero-residence-new-jersey-essex
great-room-interior-botera-residence
art-gallery-interior-design-botera-residence-new-jersey-usa

© 2025 | Inspired by Brenda. All Rights Reserved. 

Made with 🤍 by Priyash Kadu