ASD Daycare Center

Home > Projects > ASD Daycare Center

Service :

Full Interior Design

Location:

New York, NY

Category:

Healthcare

Project Story

In New York City’s West Village, the ASD Daycare Center was designed to provide a calm, engaging, and sensory-friendly environment tailored to the unique needs of children with Autism Spectrum Disorder. Inspired by the concept “Waves of Wellness,” the space incorporates soft textures, muted tones, and sensory-driven elements to create a setting that feels safe, structured, and soothing. Specialized rooms for toddlers, preschoolers, and infants are paired with sensory play zones and staff areas to support both development and daily care. With anti-germicidal surfaces, custom furniture, and carefully selected materials, every detail promotes comfort, learning, and interaction—fostering a nurturing atmosphere where children can explore, grow, and thrive.

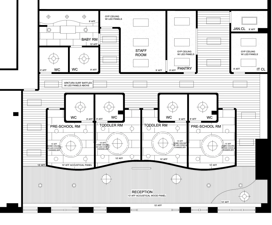
Reflected Ceiling Plan

asd daycare center floor plan

Rendered Floor Plan

floor plan asd daycare center

A Nurturing Space for Little Explorers

asd-daycare-center-perspective-of-pantry-new-jersey-interior-design
asd-daycare-center-toddler-room-interior-design
asd-daycare-center-somerset
baby-room-asd-daycare-center-new-jerse-3d-interior-design

© 2025 | Inspired by Brenda. All Rights Reserved. 

Made with 🤍 by Priyash Kadu